Av. Colonia y Los Patos.
Distrito Tecnológico. CABA
• Edificio de oficinas de PB
• 7 pisos de plantas de oficinas.
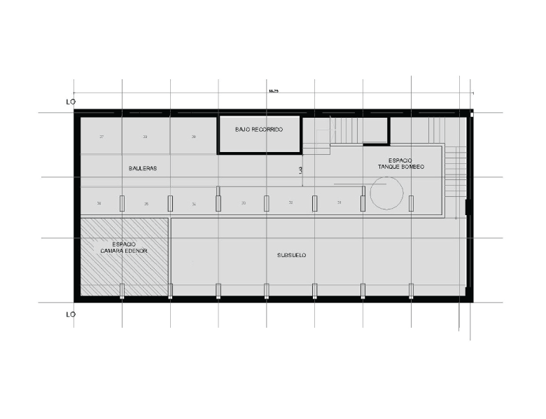
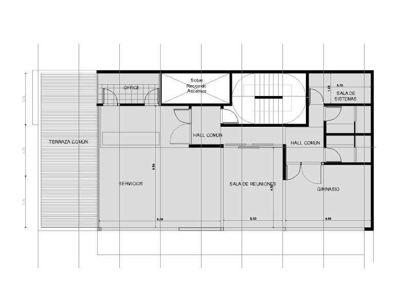
• Terraza de servicios
(Data Center / Salas / Área descubierta)
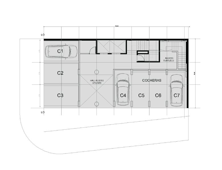
• Cocheras en PB o local comercial.
• Superficie de construcción total estimada: 1.400 m2
• Superficies propias: 1.050 m2.
CONSULTAR SOBRE ESTE PROYECTO
| Unidad | m2 cubiertos | m2 semicubiertos | Total m2 | |
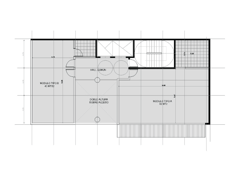
| 1 Piso | A | 62 | 9 | 71 |
| B | 43 | 0 | 43 | |
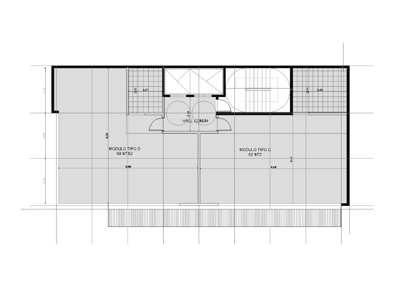
| 2 Piso | A | 62 | 9 | 71 |
| B | 68 | 7 | 75 | |
| 3 Piso | A | 62 | 9 | 71 |
| B | 68 | 7 | 75 | |
| 4 Piso | A | 62 | 9 | 71 |
| B | 68 | 7 | 75 | |
| 5 Piso | A | 62 | 9 | 71 |
| B | 68 | 7 | 75 | |
| 6 Piso | A | 62 | 9 | 71 |
| B | 68 | 7 | 75 | |
| 7 Piso | A | 62 | 9 | 71 |
| B | 68 | 7 | 75 |